파이브 바이스 규격 관련 문의 > 제품문의

본문 바로가기
제품문의

파이브 바이스 규격 관련 문의

페이지 정보

작성자 김효중 작성일25-11-03 15:59 조회129회

본문

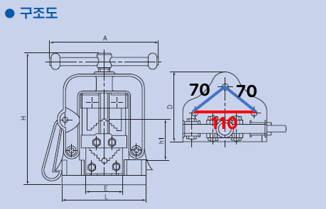
안녕하세요, 파이브 바이스 구매하고자 하는데 hole 위치 관련 규격이 궁금하여 연락드립니다.

 

현재 탁상에 홀이 뚫려있는 상태라 홀 규격을 알려주시면 감사하겠습니다.

 

첨부한 사진대로 구멍이 뚫려있습니다. 맞는 사양이 있을까요?

 

 



업체명 : (주)용수공업 | 대표자 : 신용운 | 사업자번호 : 503-81-95873 | Tel : 053-581-0040 | Fax : 053-582-2010
주소 : 경북 고령군 성산면 성산로 390 | E-mail : 5810041@hanmail.net
Copyright © (주)용수공업. All rights reserved.